戻る

青山売買.com

TOP> 売買物件一覧> ヴェーゼント赤坂新坂

品格を纏うネオ・ヴィンテージ

「ヴェーゼント赤坂新坂」は赤坂8丁目の高台に佇むハイグレードレジデンスです。青山一丁目駅から平坦な道を徒歩3分、幹線道路から奥まった落ち着いた住環境です。
2001年3月に竣工した三井物産旧分譲のマンションで、外観には2丁掛けタイルと御影石を用いた重厚で端正な佇まい。車寄せのあるゆったりとしたエントランスやアーチ状のホールなど、共用空間にも上質さが感じられます。内廊下設計でワンフロアの戸数も少なく、角地に位置するため採光や通風に恵まれた住戸も多いのが特徴。総戸数30戸の穏やかな規模感で、落ち着いた暮らしが叶いそうです。

  • 外観
  • 間取り

物件概要

物件名
ヴェーゼント赤坂新坂
価格
間取り
専有面積
住所

東京都港区赤坂8-1-9

MAP
[交通]
東京メトロ銀座線・半蔵門線・都営大江戸線「青山一丁目」駅 徒歩3分、千代田線「乃木坂」駅 徒歩9分 
[建築年月日]
2001年3月 
[構造規模]
鉄筋コンクリート造地下1階地上8階建 
[土地権利]
所有権 
[用途地域]
第二種住居地域 
[総戸数]
30戸 
[管理会社]
エム・エフ・リビングサポート株式会社 
[管理形態]
全部委託(日勤) 
[管理費月額]
 
[修繕積立金]
 
[現況]
 
[引渡]
 
[施工会社]
前田建設株式会社 
[分譲会社]
三井物産株式会社 
[設備]
オートロック/エレベーター/宅配ボックス/駐車場:空有(月額38,000円~45,000円)/駐輪場:空有(月額250円)/バイク置き場:設置無 /トランクルーム専用使用権付(無償) 
[備考]
ペット飼育可(規約有)/事務所使用不可
修繕履歴:2021年3月インターフォン設備更新、2013年9月大規模修繕工事 
[情報更新日]
2025年1月27日

REPORT

青山一丁目駅から平坦な道を徒歩3分、幹線道路から奥まった閑静な場所に佇む「ヴェーゼント赤坂新坂」。

2001年3月竣工、三井物産旧分譲の8階建てマンションで、総戸数30戸の穏やかな規模感です。

2丁掛けタイルと御影石を用いた重厚で端正な外観。車寄せのあるゆったりとしたエントランスやアーチ状のホールなど、共用空間にも上質さが感じられます。

モダンととクラシカルな趣をあわせ持ち、ネオ・ヴィンテージマンションにふさわしい落ち着きと品格が漂う住まいです。

 

 

 

■その他 外観・共用部

重厚な2丁掛けタイルと御影石に包まれた、端正な外観。アーチが描く曲線美や植栽も相まって、お屋敷街にふさわしい優美な佇まいです。

広々としたエントランスには車寄せを備え、深い庇もプライベート感を高めてくれます。木漏れ日が柔らかく差し込む光景も印象的で、都心でありながらゆったりとした心地よさを感じます。

 

エントランスホールは、柔らかな光が回るアーチ天井。木目の温もりを感じさせる扉も上質な雰囲気です。

内廊下仕様でワンフロアわずか3戸ほどの贅沢な配置。他の居住者と顔を合わせる機会も少なく、高いプライバシーが保たれた静かな共用空間です。

 

 

パーツ_地域情報

 

最寄りの「青山一丁目」駅から徒歩3分です。青山一丁目駅周辺の青山通り沿いには赤坂御用地をはじめカナダ大使館や高橋是清翁記念公園などがあり、歴史と国際色が調和した緑豊かな街並みです。

青山ツイン 青山ツイン中庭
DSC07924 ちぃばす

青山一丁目駅直結のツインタワーには飲食店が多数あり、周辺には銀行、郵便局も揃っています。医療機関や図書館、赤坂区民センターなどの公共施設も近く、生活しやすい環境です◎ミッドタウンも徒歩14分ほどです。

青山通りには港区のコミュニティバス「ちぃばす」の乗り場があり、表参道や赤坂、乃木坂、六本木ヒルズ方面へのアクセスに便利。

 

DSC07910 DSC07988

是清記念公園に隣接する草月会館内にはnendoが手掛けたカフェ「connel coffee」が入っていて、赤坂御用地の四季折々の緑を望みながら美味しいコーヒーがいただけます。

青山一丁目交差点近くに立地する「青山ビルヂング」はリニューアルし、地下部分には話題の飲食店が多く入居しています。2018年秋にオープンした「SHARE GREEN AOYAMA」。シェアオフィスやコーヒーショップ、植物屋さんなどがはいった複合施設です。

 

 

 

 

 

 

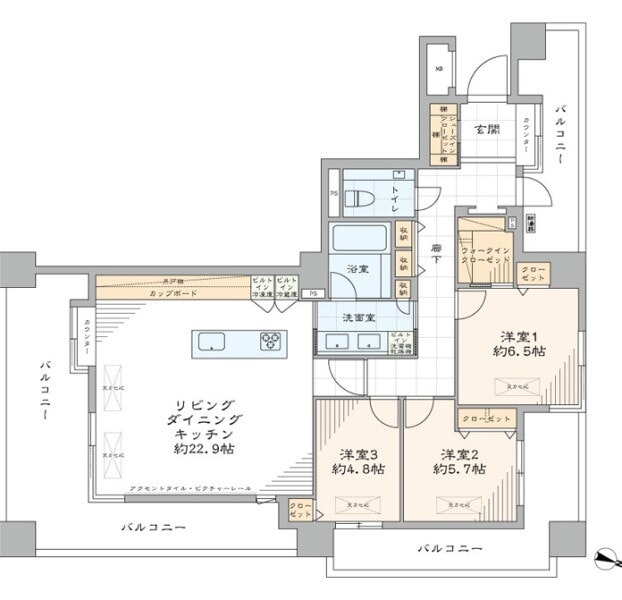
■成約済 2階部分(3LDK+WIC・SIC/99.51㎡) 

 

●東南角住戸、約46㎡の三面バルコニー

●専有面積約99㎡のゆとり溢れる3LDK

●新規内装リノベーション実施済み

●ペット飼育可(規約あり)

 

2階部分に、新規リノベーションされた上質な住戸が販売開始となりました。

専有面積は約99㎡の3LDK。角部屋ならではの採光と通風に恵まれ、三面にバルコニーを配したゆとりある空間です。

 

LDKは約22.9帖のゆったりとした広さ。南側にコーナーサッシと出窓、東側には縦長窓を配し、各所からやわらかな日差しが広がる穏やかな空間です。床暖房や天井カセット型エアコンなどの設備も整い、心地よく過ごせる憩いのリビングです。

 

華やかな存在感を放つアイランドキッチンは、田中工藝製のオリジナルキッチンです。空間に溶け込む美しいデザインに加え、LIEBHERR製ビルトイン冷蔵庫・冷凍庫やMieleの食洗機を搭載。背面にはお揃いのカップボードも備わり、設備・仕様も上質に整えられています。

キッチンとダイニングが自然につながり、洗面室へも抜けられる回遊性のある動線。暮らしの流れまで丁寧に考えられた設計です。

 

バルコニーは南・東にかけてL字型に配され、奥行きのあるゆったりとしたサイズ感。

東側には隣接建物があるものの、南側からは心地よい陽光が差し込みます。2階のため見晴らしを楽しむ眺めではありませんが、前方の建物との距離が保たれ、邸宅街らしい落ち着いた眺めが広がります。

 

廊下に沿って洋室が3室並びます。

洋室2は約5.6帖で、北西向きの掃き出し窓からやわらかな光が差し込みます。奥行きのあるバルコニーが洋室3側までL字型に伸び、屋外の空気やちょっとしたグリーンも楽しめそうな落ち着いた居室です。

洋室3は約4.8帖。東側に建物があるため、採光・眺望ともに淋しい印象ですが、天井カセットエアコンやコンパクトなクローゼットが備わり、書斎や趣味の部屋などに活用できそうです。

 

洋室1は約6.5帖。コーナーサッシにより視線が広がり、帖数以上にゆったりと感じられます。窓辺のやわらかな光も心地よく、穏やかに過ごせる居室です。クローゼットとウォークインクローゼットも備え、収納力も十分です。

 

水まわりはどの居室からもアクセスしやすい配置で、暮らしやすい動線が確保されています。ダブルボウルの洗面化粧台やMiele製の洗濯機・乾燥機、オーバーヘッドシャワー付きの浴室など、設備・仕様も充実したホテルライクな空間です。

 

自然光がやわらかく差し込む明るい玄関。玄関側にもバルコニーがあり、ビルの合間に赤坂御用地の緑も顔をのぞかせます。

 

赤坂御用地の気配を身近に感じられる都心の駅近立地。2001年築のネオ・ヴィンテージマンションに在する一室で、静かに上質な都心暮らしを叶えられそうです。

 

 

ACCESS

TOPへ

お問合せ