受付時間10:00~19:00 水曜・日曜・祝日定休
青山売買.comトップ > 全物件検索 > 白金マンション
白金マンション
白金三光坂の高台、聖心女子学院敷地隣に品よく佇む 〈申込有〉
白金台駅と白金高輪駅のほぼ中間地点である白金三光坂の高台に建つ、白金マンション。建物は聖心女子学院の敷地に隣接し、緑豊かで静かな都心のオアシスのような住環境です。1969年3月竣工の建物は、三井不動産旧分譲、竹中工務店による施工。清潔感のある端正な建物の佇まいはヴィンテージマンションらしい貫禄があり、状態も大変良好です。改修されたエントランスは元々の重厚感も残しつつ、アートが似合うモダンな雰囲気です。2014年には耐震補強工事も実施され、大事に住まわれていることが伺えます。
| 物件名 | 白金マンション | 価格 | 19,980万円 |
|---|
| 住所 | 東京都港区白金4-10-18 | 交通 | 東京メトロ南北線・都営地下鉄三田線「白金台駅」徒歩5分、東京メトロ南北線・都営地下鉄三田線「白金高輪駅」徒歩9分 |
|---|
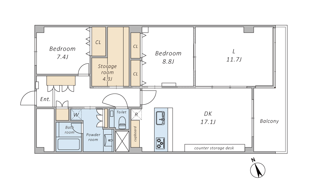
| 専有面積 | 106.58㎡ | 間取り | 2LDK+S |
|---|
| 管理費月額 | 29,380円 | 修繕積立金 | 23,790円 |
|---|
| 管理会社 | 株式会社長友 | 管理形態 | 全部委託管理(日勤) |
|---|
| 建築年月日 | 1969年3月 | 構造規模 | 鉄筋コンクリート造9階建 |
|---|
| 分譲会社 | 三井不動産株式会社 | 施工会社 | 株式会社竹中工務店 |
|---|
| 土地権利 | 所有権 | 用途地域 | 第一種中高層住居専用地域 |
|---|
| 総戸数 | 43戸 | 現況 | 空室 |
|---|
| 引渡 | 相談 | 設備 | オートロック/エレベーター2基/駐車場有り(幅2.2m) |
|---|
| 備考 | ペット飼育可(飼育細則有 体重10kg以内・2匹まで) ボイラー保守料:9,350円(年間) 駐車場使用料:18,150円 |
|---|---|
| 情報更新日 | 2026年4月10日 |
![]() |
|
![]() |
![]() |
![]() |
![]() |
白金台駅と白金高輪駅のほぼ中間地点である白金三光坂の高台に建つ、白金マンション。建物は聖心女子学院の敷地に隣接し、緑豊かで静かな都心のオアシスのような住環境です。1969年3月竣工の建物は、三井不動産旧分譲、竹中工務店による施工。清潔感のある端正な建物の佇まいはヴィンテージマンションらしい貫禄があり、状態も大変良好です。
![]() |
|
![]() |
|
![]() |
![]() |
改修されたエントランスは元々の重厚感も残しつつ、アートが似合うモダンな雰囲気です。2014年には耐震補強工事も実施され、大事に住まわれていることが伺えます。
●白金三光坂の高台に佇むヴィンテージマンション
●平置き駐車場付き物件
●ペット飼育可能物件(飼育細則あり)
![]() |
白金三光坂の高台にあり、緑豊かな住環境に佇むこちらのマンションの2階部分が販売開始となりました。専有面積はゆったりとした106.58㎡。日当たりの良い明るいお部屋です。
![]() |
![]() |
![]() |
![]() |
![]() |
![]() |
約17.1帖のダイニング・キッチンと、それに隣接する約11.7帖のリビング。繋げることで約28.8帖ものゆとりのあるLDKが広がります。一等地にありながら、これほどのゆとりを独占できるのは100平米超の住戸こその魅力です。さらにリビング、ダイニングにはそれぞれ床暖房も完備。階下は駐車場なので足音などを気にしなくてよいのも嬉しいポイントです。
![]() |
![]() |
![]() |
バルコニーから外に目を向ければ、敷地内の大きな樹や近隣の歴史的邸宅の深い緑が視界に入り、都心にいることを忘れさせる穏やかな眺望が広がります。また、住戸間を跨ぐように設置された繊細で美しい手摺が、このマンションの上品な佇まいを作り出していますね。
![]() |
![]() |
さらに特筆すべきは、窓回りが防音・断熱性に優れた「複層ガラスサッシ」に交換済みであること。築年数の経ったマンションではよくある悩みである冬の寒さや結露、周辺の喧噪なども解消された、居住性の高い室内環境が整っています。
![]() |
|
![]() |
![]() |
日当たりの良いリビングは建具によって仕切ることも可能。状況に応じて個室としたり繋げて広がりのあるLDKとしたりと、フレキシブルで使い勝手も良好です。引戸はきちんと壁幅内に納まり、床にレールがないのも空間の連続性を損なわないための細部へのこだわりを感じます。
![]() |
![]() |
ダイニングスペースに設置されたカウンターテーブルと壁付け収納は、お部屋に合わせて売主さまがオリジナルで造作されたもの。床やキッチンの色味と調和しており、デザイン性にも配慮しながら機能性を高める、行き届いた配慮とセンスを感じます。
![]() |
![]() |
![]() |
キッチンは家族やゲストとの会話が弾むオープンな対面式。横並びの3口IHコンロは手前のスペースも広く使えるため、下ごしらえや盛り付けの際もストレスを感じさせません。背面にはカップボード収納と冷蔵庫スペースもしっかり確保されており、明るく使い勝手のよいキッチンです。
![]() |
![]() |
![]() |
![]() |
リビングに隣接した約8.8帖の寝室。天井まである大型のクローゼットを備えた頼もしい収納力が魅力です。ダイニングとリビングの双方からアクセス可能な回遊性のある間取となっており来客時以外は建具を開放しておけば、閉塞感のない伸びやかな住空間としてもお使いいただけます。
![]() |
|
![]() |
こちらは約7.4帖の寝室。しっかりと窓もあり住戸内の通風が確保できるのは嬉しいポイントです。こちらのお部屋にもしっかりとしたクローゼットが備わっており、メインの寝室と合わせ、家族それぞれの荷物をすっきりと収めることができます。
![]() |
|
![]() |
![]() |
![]() |
![]() |
明るい色を基調とした清潔感のある水回りスペース。洗面室には大容量の収納と天井付けのパイプハンガーが備えられており、家事動線を考慮した使い勝手の良いつくりです。造作の木製洗面台が空間を引き締めるアクセントになっていますね。コンセント部分に採用されたアメリカンスイッチなど、細やかなディティールの遊び心も素敵です。
![]() |
![]() |
各お部屋それぞれに設けられた収納の他に、さらに約4.3帖もの納戸スペースを備えています。季節ものやスーツケース、趣味の道具など、何でもしまっておけそうなこの空間があるからこそ、広々としたLDKがさらに際立ち、生活感を感じさせない整った住まいが叶いそうです。
![]() |
|
![]() |
![]() |
![]() |
![]() |
![]() |
![]() |
玄関には、お出かけ前の身だしなみチェックに便利な姿見を兼ねた下足入れ、そしてコートや鞄もかけておけるハンガーパイプ付の収納も完備しています。
住戸内全体は統一して明るい白と飴色の木をベースとしたお部屋づくりがなされており「白金マンションらしい」爽やかな中に温かみを感じる上品な内装のお部屋だと感じました。
人気の物件となりますので、気になる方はぜひお早めにお問合せくださいませ。
〈その他共用部〉
![]() |
|
![]() |
|
![]() |
![]() |
お部屋までの共用廊下はクラシカルな内廊下仕様。窓も大きく、明るく開放的です。
エントランスロビーも重厚な雰囲気がありつつ、美術館のような静謐な雰囲気が漂います。ポストなど、新しくしたものも嫌な新しさがなく、組合のセンスの良さも伺えます。