受付時間10:00~19:00 水曜・日曜・祝日定休
青山売買.comトップ > 全物件検索 > 代々木ハイライズ
代々木ハイライズ
70年代レトロモダンなヴィンテージマンション 〈新価格〉
代々木ハイライズは、代々木4丁目の穏やかな住宅街に建つヴィンテージマンションです。初台駅から徒歩6分、参宮橋駅から徒歩8分に加え、新宿駅へも徒歩12分とアクセス良好。
1974年4月に竣工した6階建のマンションで、オフホワイトの外壁に植栽やガーデニングの緑が映える爽やかな佇まいです。総戸数は24戸と落ち着いた規模ですが、給排水管の更新工事や大規模修繕工事などが行われており、丁寧に維持管理されている様子がうかがえます。
| 物件名 | 代々木ハイライズ | 価格 | 14,980万円 |
|---|
| 住所 | 東京都渋谷区代々木4-26-10 | 交通 | 京王新線「初台」駅 徒歩6分、小田急線「参宮橋」駅 徒歩8分、JR山手線他「新宿」駅 徒歩12分 |
|---|
| 専有面積 | 114.32㎡ | 間取り | 2SLDK |
|---|
| 管理費月額 | 22,100円 | 修繕積立金 | 29,010円 |
|---|
| 管理会社 | 株式会社日鉄コミュニティー | 管理形態 | 全部委託(日勤) |
|---|
| 建築年月日 | 1974年4月 | 構造規模 | 鉄筋コンクリート造6階建 |
|---|
| 分譲会社 | 興和不動産株式会社 | 施工会社 | 株式会社大林組 |
|---|
| 土地権利 | 所有権 | 用途地域 | 第二種中高層住居専用地域 |
|---|
| 総戸数 | 24戸 | 現況 | 空室 |
|---|
| 引渡 | 即時 | 設備 | オートロック/エレベーター/駐車場:空無/駐輪場:空有(年額2,400円)/ バイク置き場:空無 |
|---|
| 備考 | ペット飼育可能(細則有)/事務所使用不可/修繕履歴(2007年給排水管更新工事、2013年大規模修繕工事、2016年エレベーター工事) |
|---|---|
| 情報更新日 | 2025年10月7日 |
![]() |
![]() |
![]() |
最寄りの初台駅から徒歩6分、閑静な住宅街に建つヴィンテージマンションです。参宮橋駅から徒歩8分、新宿駅へも徒歩12分とアクセス良好。甲州街道や首都高などの幹線道路から奥まった立地のため、落ち着いた雰囲気です。
1974年4月に竣工した6階建で、高級マンション「ホーマットシリーズ」で知られる興和不動産の旧分譲、施工は大林組が担当した信頼のタッグによる建物です。70年代のレトロモダンな趣きをまとったフォルムと、植栽やガーデニングの緑が映える爽やかな佇まいが印象的です。
![]() |
温もりのあるタイルや植栽に彩られた、のどかな雰囲気のエントランス。オートロックが備わり、セキュリティ面も安心です。
総戸数24戸と比較的こぢんまりとした規模ですが、長期修繕計画書が作成されており、給排水管の更新工事や大規模修繕工事など過去の履歴も詳細に残されています。耐震面でも簡易補強工事を実施済みで、丁寧に維持管理されている様子がうかがえます。
■販売中 5階部分(2SLDK/114.32㎡) 14,980万円〈新価格〉
●南西向きの角部屋 バルコニーに囲まれた明るい空間
●114㎡のゆとりあふれる2LDK
●新規内装フルリノベーション実施済み(2025年9月完成)
●ペット飼育可能(細則あり)
![]() |
5階部分にリノベーション済みの素敵なお部屋が販売開始となりました。
約114㎡のゆとりある2LDKで、角部屋ならではの開放感に包まれた心地よい空間です。
![]() |
|
![]() |
|
![]() |
|
![]() |
|
![]() |
|
![]() |
2025年9月にリノベーション工事を終えた室内は、ミッドセンチュリーをテーマにしたモダンで温かみのあるデザインです。
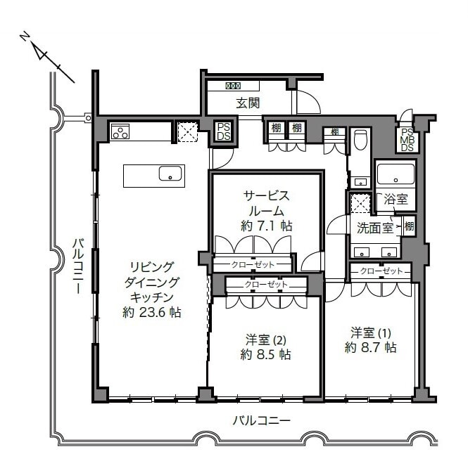
LDKは約23.6帖のゆとりある広さ。南西と北西の二面を囲むバルコニーによって、実際の帖数以上の開放感が感じられます。さらに、クリアな引き戸でゆるやかに仕切られた洋室2とつなげれば、約32.1帖の圧倒的な空間が広がり、より贅沢な使い方も可能です。
撮影時はあいにくの曇天でしたが、それでも薄手のカーテン越しにやわらかな光が感じられました。晴れていれば日中は照明を使わずとも快適にお過ごしいただけそうです。
![]() |
|
![]() |
|
![]() |
|
![]() |
キッチンは、コンロとシンクを分けたⅡ型レイアウト。リビングダイニングに溶け込む木目調のデザインに、まろやかなイエローのタイルがアクセントとなって空間をやわらかく彩ります。機能性はもちろん、見た目にも美しく、毎日の料理が楽しみになるようなキッチンです。
![]() |
|
![]() |
![]() |
居室をぐるりと囲むL字型のバルコニー。南西側は戸建てや低層の建物が並び、開放的な雰囲気。空も広く仰げるため、晴れた日にはより一層爽やかさを感じられそうです。
![]() |
|
![]() |
![]() |
ダイニング側のバルコニーは北西向き。こちらは正面の建物からの視線がやや気になるかもしれませんが、一定の距離が確保されているため、圧迫感や閉塞感は感じませんでした。
![]() |
|
![]() |
|
![]() |
|
![]() |
![]() |
ガラスパネルでゆるやかに仕切られた洋室2。約8.5帖の広さがあり、南西向きの掃き出し窓が並ぶ開放的な空間です。両開きの収納が3か所に設けられており、収納力も十分。
![]() |
|
![]() |
|
![]() |
![]() |
約8.7帖の洋室1もバルコニーに面しており、陽当り・通風ともに良好。クローゼットもしっかり備わっています。アクセントにあしらわれたチーク材の袖壁は15cmほどの厚みがあるので、飾り棚やヘッドボードのようにも使えそうです。
![]() |
![]() |
約7.1帖のサービスルームは採光窓こそありませんが、頼もしい収納力のクローゼットが備わり、居室として十分機能しそうです。
![]() |
![]() |
![]() |
![]() |
ホテルのように上質な雰囲気のサニタリー空間。
洗面台は使い勝手の良いダブルボウル仕様で、下部には引き出し収納、さらに大容量の両開き収納を備えています。収納力が高く、生活感をしっかり隠して、いつでもすっきりとした印象を保てます。テラゾータイルの壁やラウンド型ミラー、手洗いボウル、ヴィンテージ感のある水栓金具など、細部にまでミッドセンチュリーの世界観が息づく空間です。
1418サイズの浴室や手洗い器付きトイレなど、設備も充実しており、快適な生活が送れそうです。
ゆとりある玄関スペース。室内が丸見えにならず、安心感があります。居室をつなぐ廊下にも収納が豊富に設けられ、暮らしやすさを叶えてくれます。
114㎡という都心ではなかなか得難い広さに加え、ミッドセンチュリーの温かみある内装、さらに長期修繕計画に基づいた丁寧な維持管理状況と、推しポイントが詰まったお部屋です。
空室のためゆっくりとご内覧いただけます。
お気軽にお問い合わせくださいませ!
![]()
■その他共用部
![]() |
![]() |
![]() |
![]() |
レトロな趣が漂うエントランス。奥行きのある庇が安心感を与え、オートロックや宅配ボックスも完備されています。
![]() |
|
![]() |
![]() |
![]() |
|
縦長タイルで彩られた装飾壁や大理石貼りの廊下、木製の郵便受けなど、レトロ好きにはたまらない共用空間。
築年数を重ねたマンションならではの温かみがあり、清掃も行き届いていて、丁寧に管理されている印象です。
玄関ドアにリースを飾っている住戸も多く、住まいを大切にされている様子が伝わってきました。
![]()
![]() |
![]() |
初台駅からは幹線道路を渡りますが、マンション周辺は緑道があったりとのんびりしたムードが漂っています。
![]() |
![]() |
![]() |
![]() |
初台駅直結の「東京オペラシティ」は、新国立劇場やコンサートホール、ギャラリー、レストランなどを備えた複合文化施設で、「成城石井」や「わくわく広場」など、食材・お惣菜など日常のお買い物に便利なお店もあります。また、初台駅周辺には北側と南側のそれぞれに商店街があり、気軽に立ち寄れるお店がたくさん♪
![]() |
|
![]() |
![]() |
参宮橋駅も徒歩約8分です。「木と緑に溶け込む『杜』の玄関口」をコンセプトに改良され、新たに東口改札が開設。明治神宮や代々木公園へのアクセスがぐっと便利になりました◎ 西口には参宮橋商店街があり、スーパーやドラッグストアのほか、ベーカリーやジェラート専門店、多国籍レストランなど個性豊かなお店が揃います。
![]() |
![]() |
マンションに近くにはシュガードーナツが有名な「yoshida coffee sangubashi」、行列のできる「パン屋塩見」など、家の近くにあったら嬉しいスポットが点在しています◎